販売会情報
2025.8.25~9.30
- イベント
- 終了
宮崎市曽師町にて未公開情報アリ!
10:00~18:00
グランディーズ
曽師町にてお探しの方必見!!
限定1棟先行販売です!
| 日程 | 2025年8月25日(月)~9月30日(火) |
|---|---|
| 時間 | 10:00~18:00 |
| 場所 | グランディーズ (MAP) |
| 備考 | - |
【フォレクス曽師町】
✨先行予告販売✨

<日時>
8月25日~9月30日
10:00~17:00
事前予約制になります!
グランディーズの事務所にて詳細をご説明させていただき、
事務所より徒歩1分で建設予定地をご見学いただけます。
宮崎駅まで徒歩15分!コスモスも近く、幅広い世代に人気のエリアです!
新築に住みたいけど、価格も抑えたい。。
そんな方にピッタリの物件です♪
<学校区>
宮崎港小学校
宮崎中学校
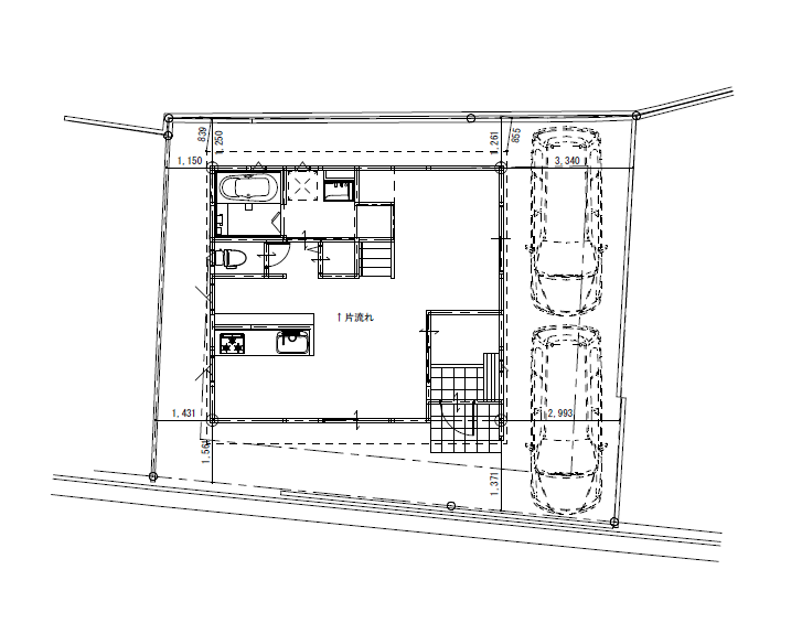
リビングは約19帖と広々空間♪
2階には大きなウォーキングクローゼットがあり、
季節ものの収納場所にも困りません!
<外構予定図>

お持ちの車が1台の方、
縦列駐車でも、いい立地に住み、価格を抑えたい方
必見です!!
曽師町でなんと2,500万円以下!!(予定)
ZEH水準の住宅で、リビングも19帖超え。
魅力的な物件です。
建築がスタートすると、ご見学予約も増えて参ります。
ぜひ、この先行予告の機会にご検討ください!
住宅ローンの提携銀行も多く、一人一人にあった最適の銀行をご提案させていただきます。
お問い合わせお待ちしております♪