物件情報
- 宮崎
- シンプル
- フォレクス
フォレクス中西町3
「ZEH水準」が標準です!!
夏涼しく冬温かい快適な住まい♪
弊社売主ですので、購入時の仲介手数料不要!
初期費用が抑えられます。
★イオンモールまで車で7分♪
★駐車スペースも3台分確保♪
★月々6万円台のお支払いでマイホーム!(^^)!
所在地
宮崎県宮崎市中西町 (MAP)
土地面積
145.24m²(43.93坪)
建物面積
98.87m²(29.90坪)
交通
バス停 一の宮
販売価格
2,590万円
小学校 /
中学校
潮見小学校 / 宮崎中学校
区画数
総区画数:1区画 / 販売区画数:1区画
【宮崎エリア】
情報提供日:2025年11月06日
次回情報更新日:2025年11月20日
お支払い例
建物土地
月々支払い67,280円
※返済例は借入金額2590万円、当社提携銀行年利1.145%(変動)40年で算
出しています。
※別途諸費用が必要です。
※詳しくは営業スタッフまでお尋ねください。
この物件はここが最大のポイント!
-
POINT01
ZEH水準の住宅
新プランはZEH水準!
より住みやすい住宅になりました(^^)/
安心の自社施工!
お住まい後のアフターサービスもご安心ください -
POINT02
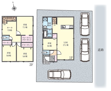
大容量収納
各部屋にクローゼットがあるだけでなく、ウォークインクローゼットもある人気プランです(^^)/
収納がたっぷりあることで生活空間が快適に♪ -
POINT03
グランディーズの建売住宅の特徴
立地・性能にこだわって建築しています。
自社でアフターサポートも行っていますので、ご安心ください♪
- 物件詳細概要・周辺環境・アクセスマップ
- 区画別詳細(全1区画)
物件詳細概要・周辺環境・アクセスマップ
物件詳細概要
所在地
宮崎県宮崎市中西町 (MAP)
交通
バス停 一の宮
販売価格
2,590万円
月々支払い
67,280円
小学校 /
中学校
潮見小学校 / 宮崎中学校
区画数
総区画数:1区画 / 販売区画数:1区画
周辺環境
-
スーパーマルイチ
(約204m / 3分)
-
ファミリーマート
(約250m / 4分)
-
マルミヤストア
(約1100m / 14分)
-
宮崎銀行
(約250m / 4分)
-
潮見小学校
(約594m / 8分)
-
宮崎中学校
(約1141m / 15分)
-
ドラッグイレブン
(約567m / 8分)
アクセスマップ
区画別詳細(全1区画)
物件詳細情報(全1区画)
宮崎県宮崎市中西町181番地3
- システムキッチン
- ウォークインクローゼット
お支払い例
建物土地
月々支払い67,280円
※返済例は借入金額2590万円、当社提携銀行年利1.145%(変動)40年で算出しています。
※別途諸費用が必要です。
※詳しくは営業スタッフまでお尋ねください。
物件詳細
販売価格
2,590万円
所在地
宮崎県宮崎市中西町181番地3 (MAP)
交通
バス停 一の宮
土地権利
所有権
地目
宅地
土地面積
145.24m²(43.93坪)
建物面積
98.87m²(29.90坪)
都市計画
市街化区域
用途地域
第1種低層住居専用地域
建ぺい率
60%
容積率
100%
建築確認
番号
第ERI-25019127
現状
完成
建物
完成時期
2025年09月
接道状況
東側4..97mの公道に約13.59mの接道
構造
木造在来工法2階建
小学校 /
中学校
潮見小学校 / 宮崎中学校
取引形態
売主
引き渡し
可能年月
相談
備考
--





