物件情報
- 宮崎
- シンプル
- フォレクス
フォレクス大坪西
メイン通りから一本入った閑静な住宅街です♪
近隣には便利な施設が多数あり!!
◆性能:ZEH水準の高性能建売住宅
ZEH水準だからこそ受けられる制度あり♪
◆価格:土地+建物+消費税コミコミ
大坪西エリアで2,700万円台の新築住宅
おススメPOINT
●車で5分以内に図書館・便利なお店が多数あり!!
●江南病院まで約1分
●約16.5帖の広々リビング♪
●ワクワクのフリースペースあり^^
●WICもあり収納力抜群!!
所在地
宮崎県宮崎市大坪西1丁目2145番2 (MAP)
土地面積
109.7m²(33.18坪)
建物面積
83.42m²(25.23坪)
交通
JR日豊本線「南宮崎駅」まで徒歩約24分
販売価格
2,790万円
小学校 /
中学校
大淀小学校 / 大淀中学校
区画数
総区画数:1区画 / 販売区画数:1区画
【宮崎エリア】
情報提供日:2026年05月01日
次回情報更新日:2026年05月15日
お支払い例
建物土地
月々支払い75,875円
※返済例は借入金額2,790万円、当社提携銀行年利1.395%(変動)40年で算
出しています。
※別途諸費用が必要です。
※詳しくは営業スタッフまでお尋ねください。
この物件はここが最大のポイント!
-
POINT01
WIC+背の高い収納!!
収納もたっぷり♪
人気のWIC、背の高いクローゼットあり^^ -
POINT02
グランディーズの建売の特徴
立地・性能にこだわって建築しています。
自社でアフターサポートも行っていますので、ご安心ください♪ -
POINT03
グランディーズの建売住宅の特徴
ZEH水準高性能住宅!!ZEH水準だからこそ受けれる住宅ローン減税の魅力をご説明致します♪
- 物件詳細概要・周辺環境・アクセスマップ
- 区画別詳細(全1区画)
物件詳細概要・周辺環境・アクセスマップ
物件詳細概要
所在地
宮崎県宮崎市大坪西1丁目2145番2 (MAP)
交通
JR日豊本線「南宮崎駅」まで徒歩約24分
販売価格
2,790万円
月々支払い
75,875円
小学校 /
中学校
大淀小学校 / 大淀中学校
区画数
総区画数:1区画 / 販売区画数:1区画
周辺環境
-
宮崎市立大淀小学校
(約1906m / 24分)
-
宮崎市立大淀中学校
(約1528m / 20分)
-
ファミリーマート大坪西店
(約305m / 4分)
-
タイヨー花山手店
(約1137m / 15分)
-
COOPかおる坂店
(約1031m / 13分)
-
マツモトキヨシ大坪店
(約351m / 5分)
-
ドラッグストアコスモス大坪店
(約629m / 8分)
-
セブンイレブン宮崎大坪東2丁目店
(約568m / 8分)
アクセスマップ
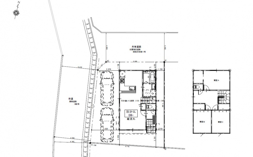
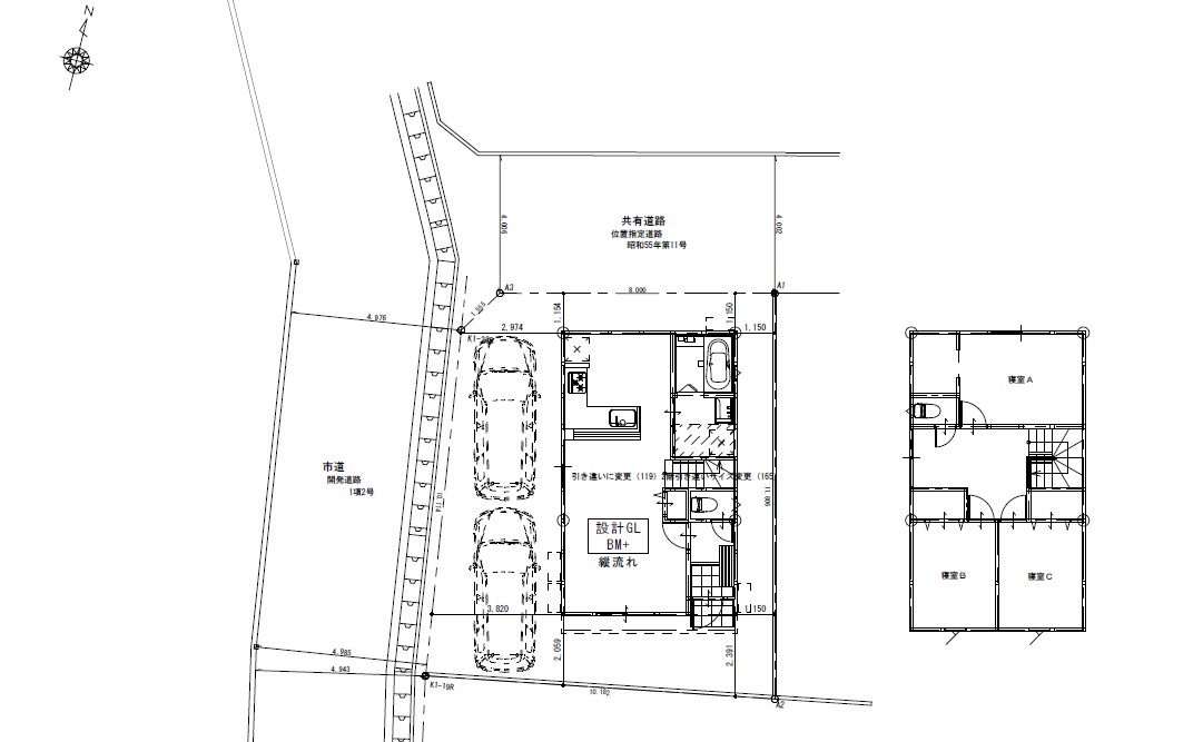
区画別詳細(全1区画)
物件詳細情報(全1区画)
宮崎県宮崎市大坪西1丁目2145番2
- システムキッチン
- ウォークインクローゼット
この物件のポイント
メイン通りから一本入った閑静な住宅街です♪
近隣には便利な施設が多数あり!!
◆性能:ZEH水準の高性能建売住宅
ZEH水準だからこそ受けられる制度あり♪
◆価格:土地+建物+消費税コミコミ
大坪西エリアで2,700万円台の新築住宅
おススメPOINT
●車で5分以内に図書館・便利なお店が多数あり!!
●江南病院まで約1分
●約16.5帖の広々リビング♪
●ワクワクのフリースペースあり^^
●WICもあり収納力抜群!!
お支払い例
建物土地
月々支払い75,875円
※返済例は借入金額2,790万円、当社提携銀行年利1.395%(変動)40年で算
出しています。
※別途諸費用が必要です。
※詳しくは営業スタッフまでお尋ねください。
物件詳細
販売価格
2,790万円
所在地
宮崎県宮崎市大坪西1丁目2145番2 (MAP)
交通
JR日豊本線「南宮崎駅」まで徒歩約24分
土地権利
所有権
地目
宅地
土地面積
109.7m²(33.18坪)
建物面積
83.42m²(25.23坪)
都市計画
市街化区域
用途地域
第1種低層住居専用地域
建ぺい率
50%
容積率
80%
建築確認
番号
第ERI-25037908号
現状
完成
建物
完成時期
2026年02月
接道状況
西側幅員約4.95mの公道に約10.06m接道、北側幅員約4.00mの私道に約9.58m接道
構造
木造在来工法2階建
小学校 /
中学校
大淀小学校 / 大淀中学校
取引形態
売主
引き渡し
可能年月
即引き渡し
備考
--





